Performance Criteria: Stormwater Filtering Systems
Stormwater filtering system capture and temporarily store the WQv and pass it through a filter bed of sand, organic matter, soil or other media. Filtered runoff may be collected and returned to the conveyance system, or allowed to partially exfiltrate into the soil. Design variants include:
This section presents criteria for:
A summary of the design criteria is provided in Table 1. The table separates required or minimum design elements from design criteria that would act primarily as guidance.
Filtering systems should not be designed to provide stormwater detention (Qp) or channel protection (Cpv) except under extremely unusual conditions. Filtering practices shall generally be combined with a separate facility to provide those controls. Filtering systems may be used to meet the recharge requirement (Rev) if they are designed to exfiltrate into the soil.
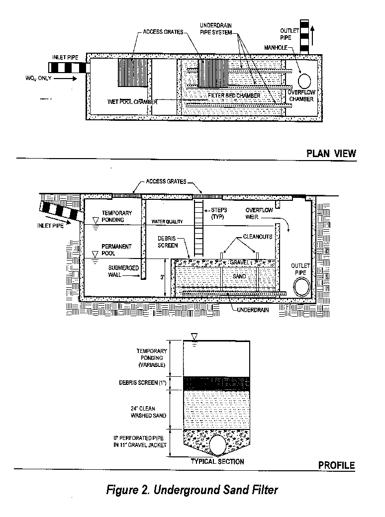
For
more information, consult "Design of Stormwater Filtering Systems," Center for
Watershed Protection, 1996.
| Table 1. Design Criteria: Filtering Systems | |
| Required Elements | Guidance |
| Feasibility | |
|
|
| Conveyance | |
|
|
| Pretreatment | |
|
|
| Treatment | |
|
|
| Landscaping | |
|
|
| Maintenance | |
|
|
Please
note that judgement is needed to separate minimum design elements from guidance.
When crafting a local or state design manual, the jurisdiction will need to
go through a process involving stakeholders to select which design elements
are necessary in all cases.




Filtering Feasibility Criteria
Most stormwater filters normally require two to six feet of head. The perimeter sand filter (F-3), however, can be designed to function with as little as one foot of head.
The maximum contributing area to an individual stormwater filtering system is usually less than 10 acres.
Sand and organic filtering systems are generally applied to land uses with a high percentage of impervious surfaces. Sites with imperviousness less than 75% will require full sedimentation pretreatment techniques.
Filtering Conveyance Criteria
If runoff is delivered by a storm drain pipe or is along the main conveyance system, the filtering practice should be designed off-line.
An overflow should be provided within the practice to pass a percentage of the WQv to a stabilized water course. In addition, overflow for the ten year storm should be provided to a non-erosive outlet point (i.e., prevent downstream slope erosion).
Consult
Soil and Water Conservation Engineering (Schwab et al.) for data
on erosive velocities.
A flow regulator (or flow splitter diversion structure) should be supplied to divert the WQv to the filtering practice.
Stormwater filters should be equipped with a minimum 4" perforated pipe underdrain (6" is preferred) in a gravel layer. A permeable filter fabric should be placed between the gravel layer and the filter media (see design specifications - infiltration).
In cold climates, the diameter may be larger to prevent freezing.
Filtering Pretreatment Criteria
Dry or wet pretreatment should be provided prior to filter media equivalent to at least 25% of the computed WQv. The typical method is a sedimentation basin that has a length to width ratio of 2:1. The Camp-Hazen equation is used to compute the required surface area for sand and organic filters requiring full sedimentation for pretreatment (WSDC, 1992) as follows:
The required sedimentation basin area is computed using the following equation:
As = (Qo/W)
= Ln (1-E)
where:
As = Sedimentation basin surface area (ft2)
E = sediment trap efficiency (use 90%)
W = particle settling velocity (ft/sec)
use 0.0004 ft/sec for imperviousness (I) 75%
use 0.0033 ft/sec for I > 75%
Qo = Discharge rate from basin = (WQv/24 hr)
Equation reduces to:
As = (0.066)
(WQv) ft2 for I 75%
As = (0.0081) (WQv) ft2 for I > 75%
Adequate pretreatment for bioretention systems is provided when all of the following are provided: (a) grass filter strip below a level spreader, (b) gravel diaphragm and (c) a mulch layer.
In this regard, bioretention systems are fundamentally different from other filtering practices.
Filtering Treatment Criteria
The entire treatment system (including pretreatment) should temporarily hold at least 75% of the WQv prior to filtration.
The filter media should consist of a medium sand (meeting ASTM C-33 concrete sand). Media used for organic filters may consist of peat/sand mix or leaf compost. Peat should be a reed-sedge hemic peat.
The filter bed typically has a minimum depth of 18". The perimeter filter may have a minimum filter bed depth of 12".
Most filtering practices cannot provide stormwater detention or downstream channel protection (Qp and Cpv) under most site conditions.
The filter area for sand and organic filters should be sized based on the principles of Darcy's Law. A coefficient of permeability (k) should be used as follows:
Bioretention systems should consist of the following treatment components: A four foot deep planting soil bed, a surface mulch layer, and a 6" deep surface ponding area.
The required filter bed area is computed using the following equation
Af = (WQv)
(df) / [ (k) (hf + df) (tf)] where
Af = Surface
area of filter bed (ft2)
df = filter
bed depth (ft)
k = coefficient of
permeability of filter media (ft/day)
hf = average
height of water above filter bed (ft)
tf = design
filter bed drain time (days)
(1.67 days or 40 hours
is recommended maximum for sand filters, 48 hours for bioretention)
Note that communities use varying design methods. For more information, consult "Design of Stormwater Filtering Systems," Center for Watershed Protection, 1996.
Filtering Landscaping Criteria
A dense and vigorous vegetative cover should be established over the contributing pervious drainage areas before runoff can be accepted into the facility.
Surface filters can have a grass cover to aid in the pollutant adsorption. The grass should be capable of withstanding frequent periods of inundation and drought.
Landscaping is critical to the performance and function of bioretention areas. Therefore, a landscaping plan must be provided for bioretention areas.
Planting recommendations for bioretention facilities are as follows:
Filtering Maintenance Criteria
Sediment should be cleaned out of the sedimentation chamber when it accumulates to a depth of more than six inches. Vegetation within the sedimentation chamber shall be limited to a height of 18 inches. The sediment chamber outlet devices shall be cleaned/repaired when drawdown times exceed 36 hours. Trash and debris shall be removed as necessary.
Silt/sediment shall be removed from the filter bed when the accumulation exceeds one inch. When the filtering capacity of the filter diminishes substantially (i.e., when water ponds on the surface of the filter bed for more than 48 hours), the top few inches of discolored material shall be removed and shall be replaced with fresh material. The removed sediments should be disposed in an acceptable manner (i.e., landfill).
Organic filters or surface sand filters that have a grass cover should be mowed a minimum of 3 times per growing season to maintain maximum grass heights less than 12 inches.
A stone drop of at least six inches shall be provided at the inlet of bioretention facilities (F-6) (pea gravel diaphragm). Areas devoid of mulch should be re-mulched on an annual basis. Dead or diseased plant material shall be replaced.
Direct maintenance access shall be provided to the pretreatment area and the filter bed.